Units 2 & 3 Barlow Road CV2

Units 2 & 3 Barlow Road CV2

34,000 to 68,000 sq ft (3,158.7 to 6,317.4 sq m)

Coventry Arena 1.5 miles
Bedworth 2.6 miles
Coventry 3.7 miles

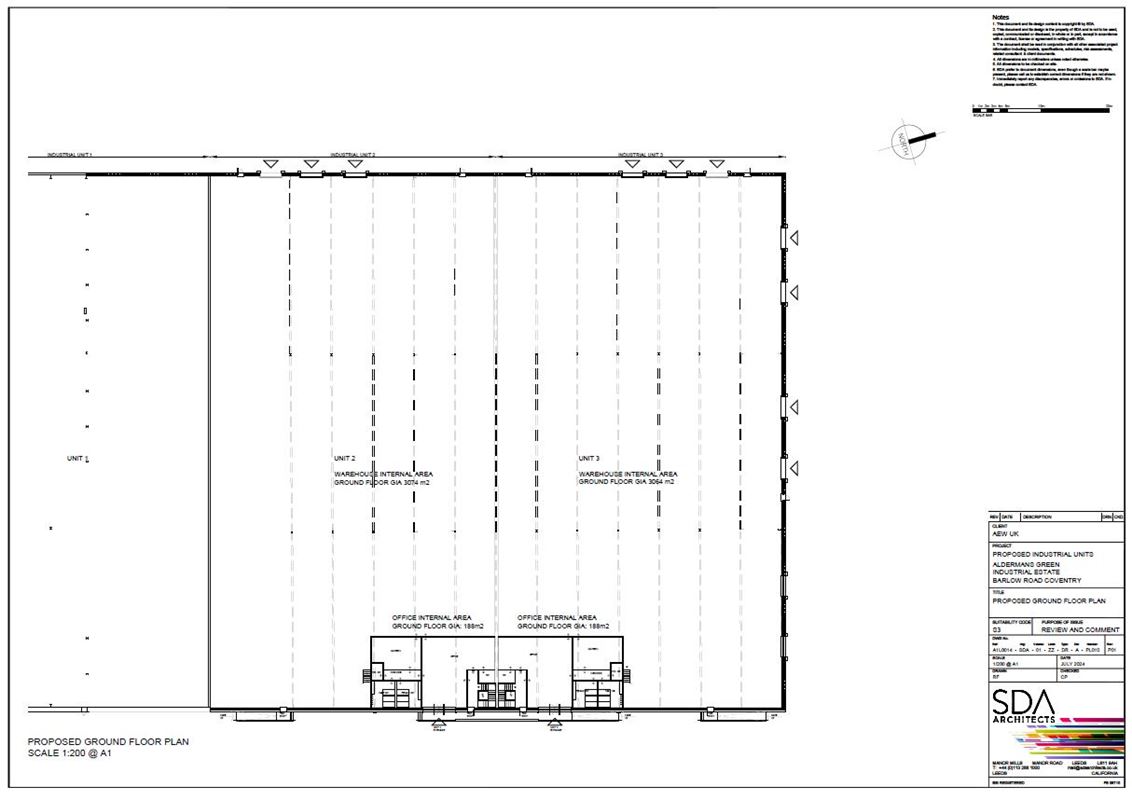
The property comprises two industrial units which total approximatley 68,000 sq ft of industrial accommodation that can be taken as a whole or as two seperate 34,000 sq ft units. Refurbishment works are planned for Q1 2025 subject to planning.

Key Features

  • To be refurbished
  • Extensive yard
  • Exclusive parking
  • Subject to planning
  • 2.2 miles to J2 of the M6
  • Interested partied to make their own enquiries with the local council.
  • To Be Assessed

Location

The property is located in Coventry in the West Midlands, approximately 4 miles to the north east of Coventry city centre in the industrial area of Aldermans Green. The location offers excellent road links, providing direct access to the M6 and M69 Motorways and access to the M40 and M42 Motorways via the A46 and A45, Birmingham to Coventry trunk roads, respectively.

Terms & Conditions

The property is available by way of a new effective full repairing and insuring lease on terms to be agreed.

Key property details
Tenure
Leasehold Application
Size
34,000 to 68,000 Sq Ft 3,158.7 to 6,317.4 Sq M
Type
General Industrial and Storage & Distribution
Carter Jonas reference
20014810
Property agent
Scott Harkness

Suggested properties

Here are a few properties you might like, but within 2 extra miles of your current search

47,744 Sq Ft (4,435.6 Sq M)
Leasehold
Thinking of selling?

Find out what your property is worth