Richmond Road, Kingston Upon Thames KT2

Richmond Road, Kingston Upon Thames KT2

3 Bedroom

£2,750 per month £635 per week
Aragon Road 0.3 miles
Tudor Drive (Stop H) 0.3 miles

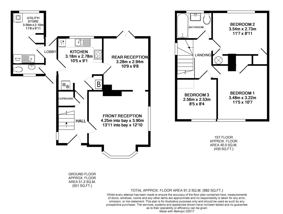
A two double bed and one single bed house set next to Tiffin Girls' School. Ideally situated for transport to Richmond and Kingston. Close to all amenities of Ham Parade and close to River. Available mid November.

The property comprises hallway, good size reception room, leading through to second reception/dining room with doors to garden and then to kitchen, including all appliances.
Downstairs WC and large utility room with sink. Door to large garden.

Upstairs comprises two double bedrooms and one single bedroom, family bathroom with shower over bath.

Available unfurnished mid November.

Council Tax - Band E

Holding Deposit 1 weeks rent = £634.61
Security Deposit 5 weeks rent = £3173.07

The next steps...

Before making an offer on a property you will want to consider your financial situation, your income and outgoings.

Will you finance the purchase of your next property from the sale of an existing property which can put you in a chain, arrange a mortgage through your bank or buy the property outright.

To help you finance your next property purchase, we have a long established relationship with an independent mortgage broker who can discuss your situation with you.

Remember that having a 'mortgage decision in principle' can make you a more attractive buyer when you make an offer on a property. Contact our mortgage advisers for free, no obligation and impartial advice.

Some advantages of a broker are:

  • They do all the legwork for you, working on your behalf with the lender
  • They compare wholesale mortgage rates from a large number of banks and lenders all at once
  • Their wholesale interest rates can be lower than retail (bank branch) interest rates
  • They offer more loan options because they work with numerous banks and lenders
  • They can finance tricky deals because of their knowledge and various lending partners
  • They are typically easier to get in contact with, and are less bureaucratic.

However advantages of working with your bank are:

  • You may be able to build off an existing relationship (and gain discounts if you have a checking or savings account)
  • You may already know the banker who will handle your mortgage
  • Banks may be more accountable than a smaller shop
  • They may offer lower interest rates in some cases
  • Their ability to add mortgage to existing banking profile and make automatic payments from linked account.

When you see a property you are interested in on our website, call us 24/7 to arrange a viewing. Or if you prefer, get in touch via our website and we will call you back to find a time to view the property that suits you.

Once you’ve found a property you want to buy, it’s time to make an offer. A bit of negotiation is to be expected, however don't offer so little that you end up in a lengthy negotiation process, as you might lose the property altogether if someone else makes a higher bid.

If other offers have been made on a property we aren't legally able to tell you what they are, but we may indicate if they were close to the asking price.

If you have a property to sell, why not see how we can help you.

Or if you’re considering letting your property, we can take the stress out of managing your rental, and our award winning lettings team offer a service that can be tailored to your needs.

Combined with nearly 170 years of experience and one of the highest customer satisfaction scores in the industry, Carter Jonas is the perfect property partner.

Why not book a free, no obligation valuation of your property and find out how Carter Jonas can help you make your next move.

Key property details
Property attributes
End of Terrace
Additional attributes
Garden
Energy efficiency rating
D
Environment impact rating
E
Letting fees
Download Letting Fees
Carter Jonas reference
BAL170086

Suggested properties

Here are a few properties you might like, but within 2 extra miles of your current search

£1,154 p/w £5,000 pcm
2 bedroom flat
£3,923 p/w £17,000 pcm
3 bedroom flat
£1,385 p/w £6,000 pcm
3 bedroom flat
£2,500 pcm £577 p/w
3 bedroom flat
£3,500 pcm £808 p/w
3 bedroom flat
£2,600 pcm £600 p/w
2 bedroom flat
£3,000 pcm £692 p/w
2 bedroom
Thinking of selling?

Find out what your property is worth