Church Road, Aldermaston RG7

Church Road, Aldermaston RG7

80.4 acres (32.5 hectares)

Offers in excess of £1,950,000
Aldermaston 1.5 miles
Midgham 1.6 miles
Aldermaston Station 1.4 miles

Ring fenced, unlisted residential farm with re-development potential

Ring fenced, unlisted residential farm with re-development potential.

Church Farm comprises a circa 18th Century farmhouse with associated yard, granary, extensive traditional buildings, parlour and timber pole barns together with orchard and permanent pasture paddocks.

In all extending to 80.39 acres (32.53 hectares).

For sale by private treaty as a whole or in up to 3 lots.

Location
Church Farm is situated on the eastern edge of the village of Aldermaston. The A4 Bath Road is 2 miles to the north and the M4 junction 12 6 miles to the east. Reading is approximately 12½ miles to the east, Newbury approximately 11 miles to the west and Basingstoke approximately 9 miles to the south.

Property
Lot 1 | Pink: Church Farmhouse, yard, traditional buildings and pasture | 7.55 acres (3.05 ha).
Lot 2 | Blue: Land at Church Road comprising undulating pasture, wooden framed building, pond and road access | 35.07 acres (14.19 ha).
Lot 3 | Yellow: Land at Red Lane being gently sloping pasture with road access | 37.77 acres (15.29 ha).

Amenities
Aldermaston is a pretty village to the west of Reading and offers a shop, florist, dining pub, primary school, nursery, garden centre, a church and a village hall. Aldermaston train station offers direct access to London Paddington in under an hour.

The larger towns of Reading, Newbury, and Basingstoke are all within easy reach, as is the M4 (J12), A4, and A34.

The area is well known for its excellent range of independent and state schooling including but not limited to Elstree, Padworth College, Pangbourne, Downe House, Cheam and Bradfield College.

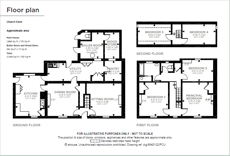
Farmhouse
Built from Berkshire brick and requiring full refurbishment the property has a twin pitch clay tile roof over the main house with a single storey extension housing kitchen at the side. There are wooden windows and doors with metal rain water goods and a wooden framed conservatory.

The ground floor comprises pantry, kitchen, breakfast room, dining room and sitting room with access hallway. The first floor has 3 bedrooms, WC and a bathroom with 2 further bedrooms to the attic above via stairs on the landing.

Externally there is a brick wall and hedge to Church Road with commensurate garden and former garage to the rear.

Buildings
A handsome collection of farm buildings populate the yard being a mix of mainly traditional barns, a block parlour and some timber pole barns.

Set in 3 tranches the first yard (A) is near the house and comprises traditional granary and a range of brick and block stores / former cattle buildings with a mix of tile and corrugated fibre roofs and extending to about 5,000 sq.ft.

The second yard (B) houses 2 super traditional wooden framed Berkshire Barns with wooden cladding under tile roofs with a brick parlour under tile roof adjacent in all extending to about 4,600 sq.ft.

The third yard (C) houses mainly pole barns and lies to the edge of the farmyard leading to the fields and provide about 8,500 sq.ft of additional floor area.

Land
Situated in a ring fence the land is all in permanent pasture subdivided into good sized parcels commensurate with its topography. With the boundaries being mainly fenced, with hedges and some trees, a small wooden framed building lies to the core with potential for alternative uses (STP).

The land slopes from Church Road on the southern boundary down to Fisherman’s Lane on the northern boundary. Streams run through parts of the land with appropriate crossings and there is a pond at the lowest point.

Enabling lotting there are 3 vehicular access points off Church Road on the southern boundary and a single vehicular access point off Fisherman’s Lane on the northern boundary. An internal track from the yard leads to the lower parcels.

Method of Sale
For sale by Private Treaty as a whole or in up to 3 lots.

Tenure & Possession
Freehold and with vacant possession on completion.

Planning
The house, farmyard and buildings at the property are located in the Aldermaston Conservation Area albeit no parts of the property are listed.

Overage
The property hatched in grey is sold subject to an overage reserving 30 % of any increase in value over a 30 year period.

For clarity the overage is to cover development of any part of the Property (apart from a singular dwelling and garden) for any purpose other than for agricultural (excluding the construction of a house subject to an agricultural occupancy condition), forestry, horticultural (excluding garden centres and plant nurseries etc.) and equestrian (excluding the construction of a house subject to an equestrian occupancy condition).

Overage payment is on the earliest of sale with the benefit of planning permission or implementation of a planning permission.

Designations
Church Farm is located in its entirety inside the AWE Aldermaston Detailed Emergency Planning Zone (DEPZ).

Services
We have not undertaken our own investigations but Church Farmhouse and the traditional farm buildings have mains water and electricity connections. Any water connected to the fields will via the same. It is understood that the farmhouse is connected to mains drainage.

Wayleaves, Easements & Rights of Way
The property is sold subject to the benefit of all rights including rights of way, whether public or private, light, support, drainage, water and electricity supplies and other rights and obligations, easements and proposed wayleaves from masts, pylons, stays, cables, drains, water, gas and other pipes, whether specifically referred
to or not.

All lots benefit from a right of access from Fishermans Lane to the north of the property. There are 2 footpaths crossing the farm. An abandoned former MOD pipeline and sewer pipe crosses parts of the property. Further details on request.

The next steps...

Before making an offer on a property you will want to consider your financial situation, your income and outgoings.

Will you finance the purchase of your next property from the sale of an existing property which can put you in a chain, arrange a mortgage through your bank or buy the property outright.

To help you finance your next property purchase, we have a long established relationship with an independent mortgage broker who can discuss your situation with you.

Remember that having a 'mortgage decision in principle' can make you a more attractive buyer when you make an offer on a property. Contact our mortgage advisers for free, no obligation and impartial advice.

Some advantages of a broker are:

  • They do all the legwork for you, working on your behalf with the lender
  • They compare wholesale mortgage rates from a large number of banks and lenders all at once
  • Their wholesale interest rates can be lower than retail (bank branch) interest rates
  • They offer more loan options because they work with numerous banks and lenders
  • They can finance tricky deals because of their knowledge and various lending partners
  • They are typically easier to get in contact with, and are less bureaucratic.

However advantages of working with your bank are:

  • You may be able to build off an existing relationship (and gain discounts if you have a checking or savings account)
  • You may already know the banker who will handle your mortgage
  • Banks may be more accountable than a smaller shop
  • They may offer lower interest rates in some cases
  • Their ability to add mortgage to existing banking profile and make automatic payments from linked account.

When you see a property you are interested in on our website, call us 24/7 to arrange a viewing. Or if you prefer, get in touch via our website and we will call you back to find a time to view the property that suits you.

Once you’ve found a property you want to buy, it’s time to make an offer. A bit of negotiation is to be expected, however don't offer so little that you end up in a lengthy negotiation process, as you might lose the property altogether if someone else makes a higher bid.

If other offers have been made on a property we aren't legally able to tell you what they are, but we may indicate if they were close to the asking price.

If you have a property to sell, why not see how we can help you.

Or if you’re considering letting your property, we can take the stress out of managing your rental, and our award winning lettings team offer a service that can be tailored to your needs.

Combined with nearly 170 years of experience and one of the highest customer satisfaction scores in the industry, Carter Jonas is the perfect property partner.

Why not book a free, no obligation valuation of your property and find out how Carter Jonas can help you make your next move.

Key property details
Locality
Rural Village
Property type
House Land Gite Farm Convenience Store Development Plot Holiday Complex
Additional attributes
Land/Paddock
Total land
80.4 acres (32.5 hectares)
Carter Jonas reference
WIR250004

Suggested properties

Here are a few properties you might like, but within 2 extra miles of your current search

Guide price £450,000
Agricultural
Offers in excess of £375,000
Agricultural
Offers in excess of £60,000 4.2 acres (1.7 hectares)
Agricultural
Offers in excess of £60,000 4.2 acres (1.7 hectares)
Agricultural
Asking price £120,000 8.4 acres (3.4 hectares)
Agricultural
Guide price £750,000 22.4 acres (9.1 hectares)
Agricultural
Offers in excess of £500,000 77.2 acres (31.2 hectares)
Agricultural
Thinking of selling?

Find out what your property is worth