Lot 3 - Land At Beeford and Foston, Driffield YO25

Lot 3 - Land At Beeford and Foston, Driffield YO25

Freehold

Asking price £1,750,000
Nafferton 4 miles
Beeford Main Street 1 miles
Brigham Crossroads 1.9 miles

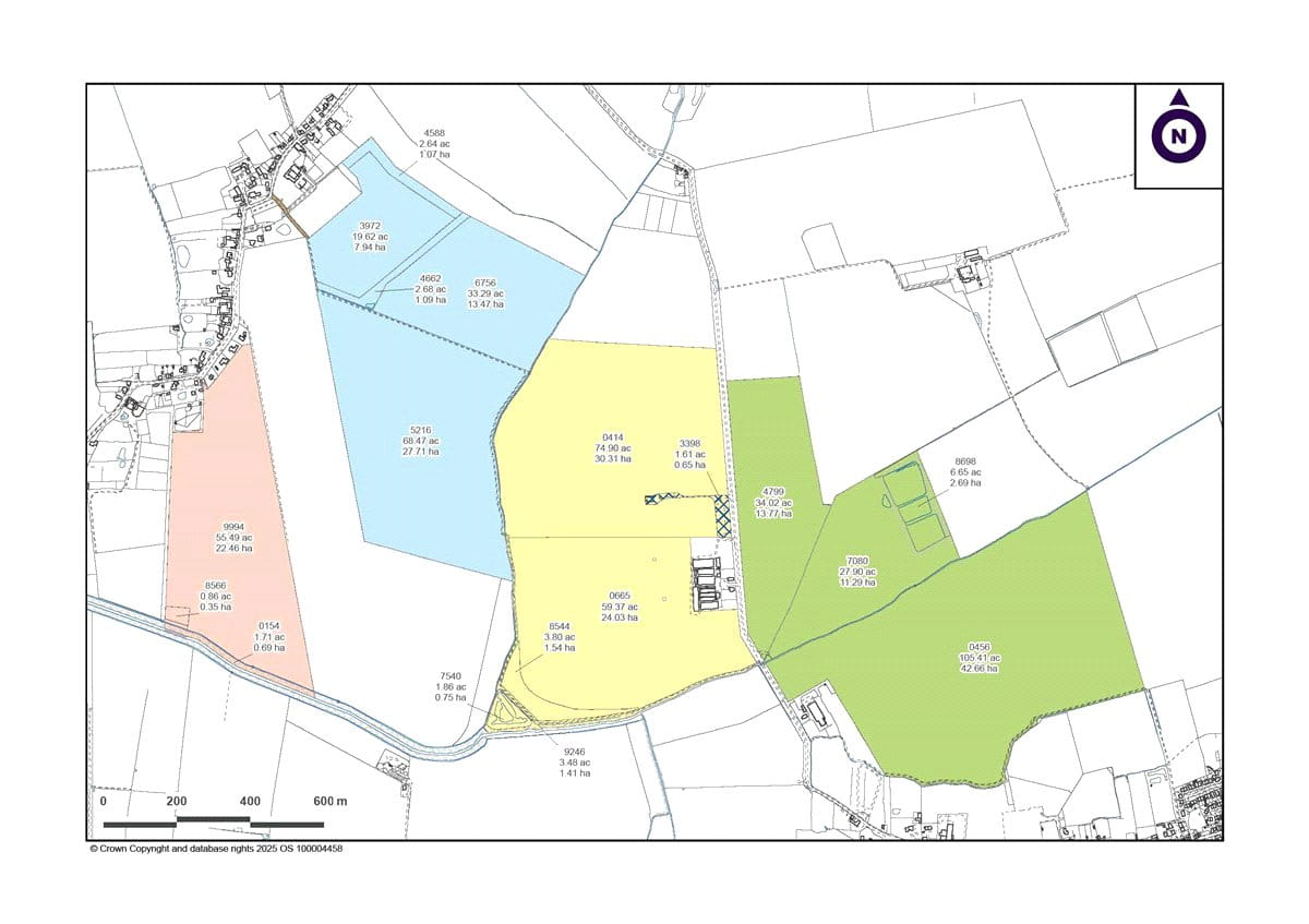
Grade 2 arable land together with general purpose building and Dutch barn let on an FBT and 6,000m³ of slurry storage. In all, extending to approximately 144.45 acres (58.46 hectares).

EXPRESSIONS OF INTEREST AND INITIAL OFFERS BY 12 NOON ON FRIDAY 18TH JULY 2025

EXPRESSIONS OF INTEREST AND INITIAL OFFERS BY 12 NOON ON FRIDAY 18TH JULY 2025

Location
The land is situated to the north-west of the village of Beeford and to the east of the village of Foston-on-the-Wolds. The market town of Driffield is situated approximately 9 miles to the west with the popular coastal resort of Bridlington situated approximately 9.5 miles to the north-east. The A165 public highway which runs through Beeford connects Bridlington with the city of Hull.

Land
Ring-fenced parcel of Grade 2 arable land together with general purpose building and Dutch barn let on an FBT and 6,000m³ of slurry storage. In all, extending to approx. 144.45 acres (58.46 hectares).

The land is currently farmed within a combinable cropping rotation to include vining peas, however, the land has also historically grown root crops.

The land is classed as being Grade 2 under the former MAFF Land Classification Series.

The underlying soil type is classed as being part of the Holderness soil series which is described as a slowly permeable fine loamy soil being well suited to cereals.

Lots 3 is accessed directly from the public highway known as Foston Lane.

The land benefits from a well-maintained drainage scheme which outfalls to Old Howe and Pitwherry Drains. Drainage rates are payable to Beverley and North Holderness IDB.

From Old Howe Drain which splits Lots 2 and 3, the land rises from approximately 5 metres above sea level on the western boundary to 15 metres above sea level on the eastern boundary.

A reinforced concrete bridge (approx. 6 metres wide) over Old Howe drain connects Lots 2 and 3.

Isolation Unit and Dutch Barn
Situated on Lot 3, is a general-purpose agricultural building (65’ x 50’) of steel portal frame construction under a corrugated profile clad roof with part concrete block walls and Yorkshire boarding to eaves. A lean-to (15’ x 15’) provides additional storage. The building currently serves as a pig isolation unit.

Situated to the east of the pig isolation unit, there is a dutch barn (135’ x 30’) of timber frame construction under a corrugated profile clad roof which serves as a straw store.

The buildings together with the midden area as crosshatched blue on plan are let by virtue of a Farm Business Tenancy (FBT) to the adjoining pig unit at West Farm which expires on 15th September 2040.

Further details are available from the selling agent.

Slurry Store
Situated on Lot 3, is a 6,000m3 slurry store being constructed of sealed precast concrete panels with a membrane roof covering.

The slurry store was partially grant aided under the Slurry Infrastructure Grant and is operated by the adjoining pig unit at West Farm.

The new slurry store replaced the former slurry lagoons situated on Lot 4 which are now redundant.

The Vendor operates a straw for muck and slurry agreement with the neighbouring pig unit and the Purchaser will be obliged to enter into this agreement.

Further details are available from the selling agent.

Method of Sale
The property is offered for sale by private treaty being one of 4 lots. The vendors reserve the right to conclude the sale by any other means at their discretion.

If you have downloaded these particulars, please register your interest with the selling agent.

Tenure & Possession
The freehold of the Property is offered for sale.

The vendor currently operates a contract farming agreement with a local farmer and vacant possession will be provided upon completion of the sale.

The area crosshatched blue on the sale plan attached is sold subject to the unexpired term of a Farm Business Tenancy (FBT) which expires on 15th September 2040.

Basic Payment Scheme
The land has been registered on the Rural Land Register and all de-linked payments will be retained by the Vendor.

Environmental Schemes
There are no environmental schemes pertaining to the land.

Designations
The land is situated within a surface water Nitrate Vulnerable Zone (NVZ).

Holdover
The Vendor reserves the right of holdover for the purpose of harvesting crops and straw clearance until 30th September 2025.

Ingoing
In addition to the purchase price, the Purchaser will be required to pay for any growing crops, including cultivations, seeds, fertilisers, sprays, lime, new leys and acts of husbandry at cost or market value (whichever is higher) where applicable.

Drainage
The land is all drained with drainage rates payable to Beverley and North Holderness Internal Drainage Board (IDB).

Wayleaves, Easements & Rights of Way
The land is sold subject to and with the benefits of all rights of way, water drainage, water courses and other easements and rights of adjoining owners (if any) affecting the same and all existing and proposed wayleaves and other matters registered by any competent authority subject to statute.

A public footpath transects Lots 2 and 3 in an east/west direction connecting the village of Foston-on-the-Wolds with Foston Lane.

A gas main transects the southern extent of Lot 3 and is subject to the requisite deed of easement.
A private right of way over the access track shaded brown will be granted in favour of Lot 2.

The Vendors will retain the freehold ownership of the land upon which the wind turbines are sited and reserve appropriate access rights to maintain, repair and replace. Further details are available from the selling agents.

Health & Safety
Parties are reminded to be as vigilant as possible when making an inspection and be aware of potential hazards including open ditches and drains. Parties viewing the property do so, entirely at their own risk.

VAT
Any prices quoted are exclusive of VAT. In the event that the sale of the property or any part of it or any right attached to it becomes a chargeable supply for the purposes of VAT, such tax will be payable in addition to the purchase price.

Sporting Timber & Mineral Rights
The sporting and timber rights are included in the sale in so far as they are owned.

Mineral Rights
The mineral rights in respect of Lot 3 are reserved to a third party.

Local Authority
East Riding of Yorkshire
www.eastriding.gov.uk

Viewings
Parties are permitted to view the land on foot and during reasonable daylight hours.

Directions
For Lots 3 and 4, continue along the B1249 through the village of North Frodingham and as you enter the village of Beeford, turn left onto Foston Lane and the land is situated on either side of the road after approximately 0.5 mile.

What3Words
Lot 3 – ///dividers.secondly.cheat

The next steps...

Before making an offer on a property you will want to consider your financial situation, your income and outgoings.

Will you finance the purchase of your next property from the sale of an existing property which can put you in a chain, arrange a mortgage through your bank or buy the property outright.

To help you finance your next property purchase, we have a long established relationship with an independent mortgage broker who can discuss your situation with you.

Remember that having a 'mortgage decision in principle' can make you a more attractive buyer when you make an offer on a property. Contact our mortgage advisers for free, no obligation and impartial advice.

Some advantages of a broker are:

  • They do all the legwork for you, working on your behalf with the lender
  • They compare wholesale mortgage rates from a large number of banks and lenders all at once
  • Their wholesale interest rates can be lower than retail (bank branch) interest rates
  • They offer more loan options because they work with numerous banks and lenders
  • They can finance tricky deals because of their knowledge and various lending partners
  • They are typically easier to get in contact with, and are less bureaucratic.

However advantages of working with your bank are:

  • You may be able to build off an existing relationship (and gain discounts if you have a checking or savings account)
  • You may already know the banker who will handle your mortgage
  • Banks may be more accountable than a smaller shop
  • They may offer lower interest rates in some cases
  • Their ability to add mortgage to existing banking profile and make automatic payments from linked account.

When you see a property you are interested in on our website, call us 24/7 to arrange a viewing. Or if you prefer, get in touch via our website and we will call you back to find a time to view the property that suits you.

Once you’ve found a property you want to buy, it’s time to make an offer. A bit of negotiation is to be expected, however don't offer so little that you end up in a lengthy negotiation process, as you might lose the property altogether if someone else makes a higher bid.

If other offers have been made on a property we aren't legally able to tell you what they are, but we may indicate if they were close to the asking price.

If you have a property to sell, why not see how we can help you.

Or if you’re considering letting your property, we can take the stress out of managing your rental, and our award winning lettings team offer a service that can be tailored to your needs.

Combined with nearly 170 years of experience and one of the highest customer satisfaction scores in the industry, Carter Jonas is the perfect property partner.

Why not book a free, no obligation valuation of your property and find out how Carter Jonas can help you make your next move.

Key property details
Locality
Rural
Property type
Land
Tenure
Freehold
Carter Jonas reference
HGT250017
Thinking of selling?

Find out what your property is worth