York Road, Kexby YO41

York Road, Kexby YO41

Freehold | Holiday Complex

Asking price £200,000
Elvington Primary School 2.1 miles
Manor Drive 2.5 miles
Stamford Bridge The Square 2.7 miles

A rare opportunity to acquire a desirable parcel of amenity land fronting the River Derwent and with the benefit of planning consent for the siting of a timber holiday cabin. In all extending to approx. 9.42 acres.

LOCATION
Ten Acres is situated between the villages of Kexby and Wilberfoss and fronting the A1079 public highway. The city of York is situated approximately 6 miles to the west. Access to the A64 is within 4 miles which in turn provides access to the A19 and A1(M) and the service centres of the north-east beyond. Access to the East Coast Main Line is available at York providing access to London Kings Cross in under 2 hours.

LAND
The property comprises a ring-fenced parcel of amenity grassland with frontage to the River Derwent and extending in all to approximately 9.42 acres.

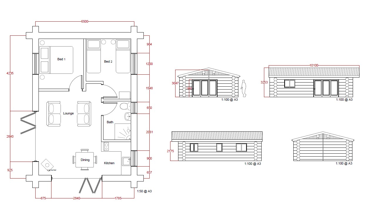
The property benefits from planning consent (ref: 17/01247/PLF) for the siting of a timber holiday cabin. The planning consent is acknowledged by the local planning authority to have been implemented by virtue of the installation of the services with a variation having been granted (ref:21/02942/VAR) which relates to the design.

The approved plans provide for a traditional single storey log cabin providing open plan kitchen, dining and living area with bi-fold doors together with two bedrooms and a separate bathroom.

The land benefits from being fully serviced with connections to mains water and electricity.

The land is accessed directly from the A1079 and situated approximately 10 metres above sea level.

METHOD OF SALE
The property is offered for sale by private treaty as a whole. The vendors reserve the right to conclude the sale by any other means at their discretion.

If you have downloaded these particulars, please register your interest with the selling agent.

TENURE AND POSSESSION
The freehold of the Property is offered for sale with the benefit of vacant possession.

PLANNING
21/02942/VAR – Variation of condition 8 (colour of building) and condition 9 (approved plans) of planning permission 17/01247/PLF - Siting of timber holiday cabin.

20/01792/PLF – Erection of site utility hut (for water and electric meters) associated with timber holiday cabin and construction of a soil bund (part retrospective).

17/01247/PLF Siting of timber holiday cabin.

ADDITIONAL INFORMATION
Additional information including copies of the planning decision notices and approved plans are available from the selling agent.

SERVICES
The land benefits from mains connections to electricity and water.

WAYLEAVES, EASEMENTS & RIGHTS OF WAY
The land is sold subject to and with the benefits of all rights of way, water drainage, water courses and other easements and rights of adjoining owners (if any) affecting the same and all existing and proposed wayleaves and other matters registered by any competent authority subject to statute.

HEALTH & SAFETY
Parties are reminded to be as vigilant as possible when making an inspection and be aware of potential hazards including open ditches and drains. Parties viewing the property do so, entirely at their own risk.

VAT
Any prices quoted are exclusive of VAT. In the event that the sale of the property or any part of it or any right attached to it becomes a chargeable supply for the purposes of VAT, such tax will be payable in addition to the purchase price.

SPORTING, TIMBER & MINERAL RIGHTS
The sporting, timber and mineral rights are included in so far as they are owned.

LOCAL AUTHORITIES
East Riding of Yorkshire Council
www.eastriding.gov.uk

VIEWINGS
Parties are permitted to view the land on foot and during reasonable daylight hours.

DIRECTIONS
From York Ring Road travel east on the A1079 signposted Hull, Pocklington and Dunnington. Travel through the village of Kexby and over the River Derwent with access to the land being situated immediately on the left hand side as marked with a Carter Jonas For Sale board.

WHAT3WORDS
///officers.bulk.squabbles

The next steps...

Before making an offer on a property you will want to consider your financial situation, your income and outgoings.

Will you finance the purchase of your next property from the sale of an existing property which can put you in a chain, arrange a mortgage through your bank or buy the property outright.

To help you finance your next property purchase, we have a long established relationship with an independent mortgage broker who can discuss your situation with you.

Remember that having a 'mortgage decision in principle' can make you a more attractive buyer when you make an offer on a property. Contact our mortgage advisers for free, no obligation and impartial advice.

Some advantages of a broker are:

  • They do all the legwork for you, working on your behalf with the lender
  • They compare wholesale mortgage rates from a large number of banks and lenders all at once
  • Their wholesale interest rates can be lower than retail (bank branch) interest rates
  • They offer more loan options because they work with numerous banks and lenders
  • They can finance tricky deals because of their knowledge and various lending partners
  • They are typically easier to get in contact with, and are less bureaucratic.

However advantages of working with your bank are:

  • You may be able to build off an existing relationship (and gain discounts if you have a checking or savings account)
  • You may already know the banker who will handle your mortgage
  • Banks may be more accountable than a smaller shop
  • They may offer lower interest rates in some cases
  • Their ability to add mortgage to existing banking profile and make automatic payments from linked account.

When you see a property you are interested in on our website, call us 24/7 to arrange a viewing. Or if you prefer, get in touch via our website and we will call you back to find a time to view the property that suits you.

Once you’ve found a property you want to buy, it’s time to make an offer. A bit of negotiation is to be expected, however don't offer so little that you end up in a lengthy negotiation process, as you might lose the property altogether if someone else makes a higher bid.

If other offers have been made on a property we aren't legally able to tell you what they are, but we may indicate if they were close to the asking price.

If you have a property to sell, why not see how we can help you.

Or if you’re considering letting your property, we can take the stress out of managing your rental, and our award winning lettings team offer a service that can be tailored to your needs.

Combined with nearly 170 years of experience and one of the highest customer satisfaction scores in the industry, Carter Jonas is the perfect property partner.

Why not book a free, no obligation valuation of your property and find out how Carter Jonas can help you make your next move.

Key property details
Additional attributes
Holiday Complex
Property type
Land
Tenure
Freehold
Carter Jonas reference
HGT250024
Thinking of selling?

Find out what your property is worth