Tudor Avenue, Chieveley RG20

Tudor Avenue, Chieveley RG20

4 Bedroom | Freehold

Guide price £450,000
East Lane 1.1 miles
Marlston Road 2.3 miles
Newbury Lane 3.4 miles

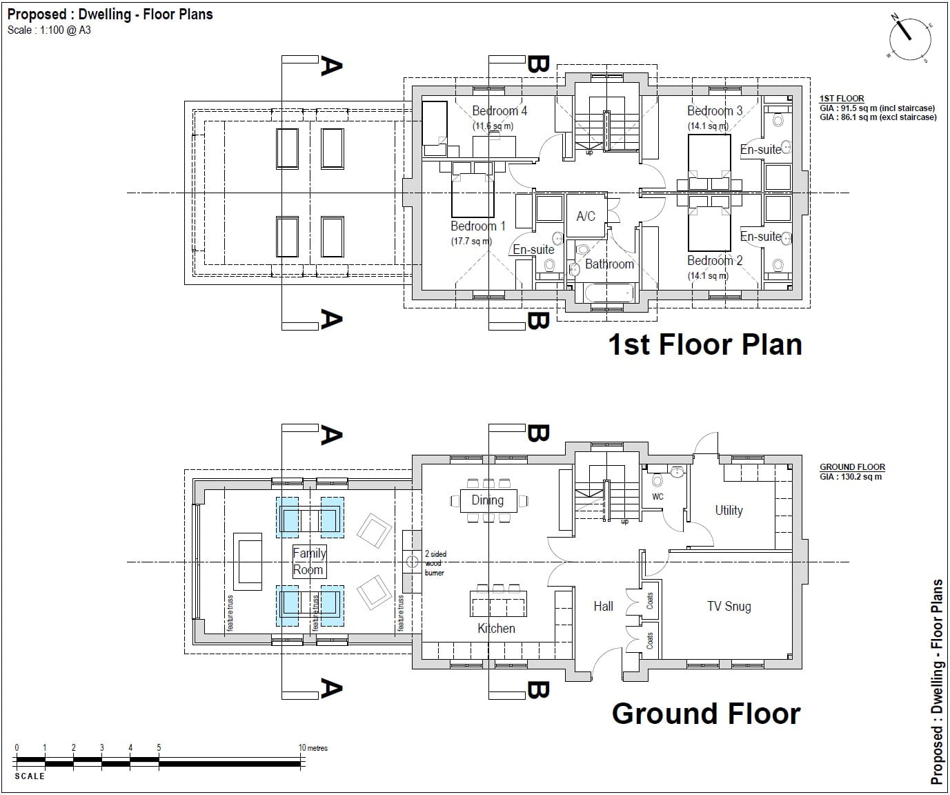
A fantastic opportunity to acquire this single building plot with planning permission for a 4 bedroom detached house, double garage with room above, and a with westerly facing garden.

Description:
On Friday 1st August 2025 planning permission was granted for a 4 bedroom detached house, double garage and associated works. The planning permission number is 24/00657/FUL and is for the construction of an individual new property. The decision notice and relative documents can be viewed via the West Berkshire website www.westberks.gov.uk on their planning pages. The consent is for a 3 year period from 1st August 2025.

The Plot:
The plot offers a variety of options depending on the amount of land desired. The house and garage comes with a plot of 0.37 of an acre but there is a further 0.38 of an acre available by separate negotiation. There is also a chance to own the majority of Tudor Avenue. The plot itself is mainly level and flanked by established trees and shrubs. Once constructed the house will have a private, west facing rear garden.

Purchasers will be responsible for paying the CIL which totals approximately £51,000. If you are building the house for yourself to live in (self build) then you may be able to claim an exemption.

Agents Note:
Professional building team available to build the property if required.

Please note the images of the property are CGI's.

Tenure:
Freehold

Services:
Non connected

Local Authority:
West Berkshire Council

The next steps...

Before making an offer on a property you will want to consider your financial situation, your income and outgoings.

Will you finance the purchase of your next property from the sale of an existing property which can put you in a chain, arrange a mortgage through your bank or buy the property outright.

To help you finance your next property purchase, we have a long established relationship with an independent mortgage broker who can discuss your situation with you.

Remember that having a 'mortgage decision in principle' can make you a more attractive buyer when you make an offer on a property. Contact our mortgage advisers for free, no obligation and impartial advice.

Some advantages of a broker are:

  • They do all the legwork for you, working on your behalf with the lender
  • They compare wholesale mortgage rates from a large number of banks and lenders all at once
  • Their wholesale interest rates can be lower than retail (bank branch) interest rates
  • They offer more loan options because they work with numerous banks and lenders
  • They can finance tricky deals because of their knowledge and various lending partners
  • They are typically easier to get in contact with, and are less bureaucratic.

However advantages of working with your bank are:

  • You may be able to build off an existing relationship (and gain discounts if you have a checking or savings account)
  • You may already know the banker who will handle your mortgage
  • Banks may be more accountable than a smaller shop
  • They may offer lower interest rates in some cases
  • Their ability to add mortgage to existing banking profile and make automatic payments from linked account.

When you see a property you are interested in on our website, call us 24/7 to arrange a viewing. Or if you prefer, get in touch via our website and we will call you back to find a time to view the property that suits you.

Once you’ve found a property you want to buy, it’s time to make an offer. A bit of negotiation is to be expected, however don't offer so little that you end up in a lengthy negotiation process, as you might lose the property altogether if someone else makes a higher bid.

If other offers have been made on a property we aren't legally able to tell you what they are, but we may indicate if they were close to the asking price.

If you have a property to sell, why not see how we can help you.

Or if you’re considering letting your property, we can take the stress out of managing your rental, and our award winning lettings team offer a service that can be tailored to your needs.

Combined with nearly 170 years of experience and one of the highest customer satisfaction scores in the industry, Carter Jonas is the perfect property partner.

Why not book a free, no obligation valuation of your property and find out how Carter Jonas can help you make your next move.

Key property details
Era
New
Locality
Village
Property type
Detached Land Development Plot
Additional attributes
Garden
Tenure
Freehold
Carter Jonas reference
NEW250327

Suggested properties

Here are a few properties you might like, but within 2 extra miles of your current search

Guide price £750,000 22.4 acres (9.1 hectares)
Agricultural
Offers in excess of £60,000 4.2 acres (1.7 hectares)
Agricultural
Offers in excess of £60,000 4.2 acres (1.7 hectares)
Agricultural
Asking price £120,000 8.4 acres (3.4 hectares)
Agricultural
Offers in excess of £500,000 77.2 acres (31.2 hectares)
Agricultural
Offers in excess of £375,000
Agricultural
Thinking of selling?

Find out what your property is worth