Barns At Ashdown Farm, Blackmore Lane TA5

Barns At Ashdown Farm, Blackmore Lane TA5

A well situated rural development site for six barn conversions.

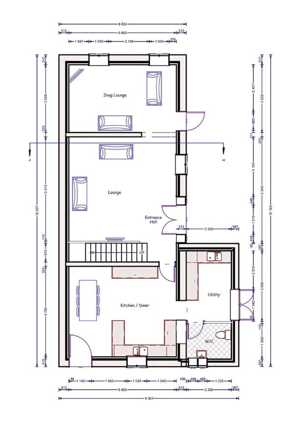
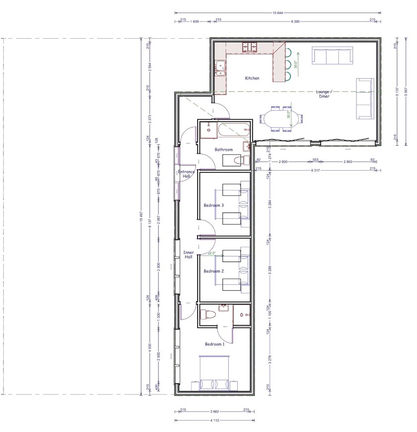
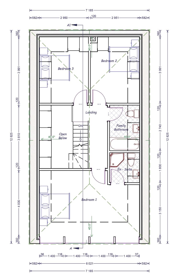
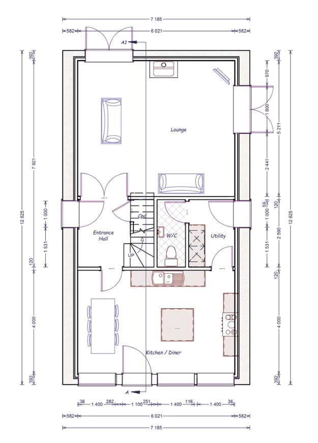
The site at Ashdown Farm comprises a range of agricultural buildings with permission for conversion to six detached single and two storey dwellings. The dwellings will comprise a mixture of construction styles including traditional red sandstone and tile, and brick and tile. The proposed dwellings will offer accommodation as follows:

GROSS INTERNAL / EXTERNAL AREA

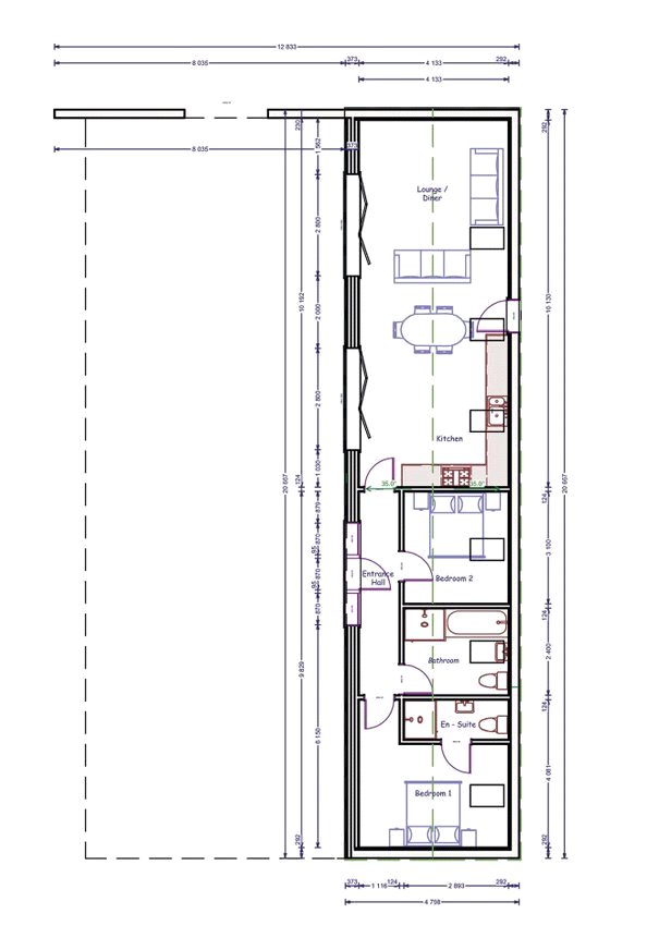
BARN 1
3 bedroom detached
145sqm / 184.30sqm

BARN 2
1 bedroom detached single storey
32.53sqm / 51.32sqm

BARN 3
2 bedroom detached
94.24sqm / 133.70sqm

BARN 4
3 bedroom detached
188sqm / 231.70sqm

BARN 5
2 bedroom detached single storey
82.66sqm / 99.39sqm

BARN 6
3 bedroom detached single storey
100.06sqm / 111.84sqm

TOTAL
642.49sqm / 812.25sqm

PLANNING PERMISSION
Planning permission was granted by Sedgemoor District Council for the development under several planning applications; permission for barns 1-4 was granted under application number 13/11/00006 (this was updated in June 2019 under application number 13/19/00018). Permission was granted in August 2020 for the development of barns 5 and 6 under application numbers 13/19/00006 and 13/19/00008.

SERVICES
Water – new mains connections will need to be established to service the dwellings. The mains water supply is situated within the adjoining land to the east of the proposed development and the relevant easements will be granted to facilitate the new connection via the land.

Electricity – new mains electricity connections will need to be established to service the dwellings.

Drainage – a sewage treatment plant will need to be installed to service the dwellings. The relevant easements will be granted to facilitate the discharge from this plant into the ditch to the north.

HEALTH AND SAFETY
Potential purchasers must take particular care when inspecting the property. Potential purchasers are requested to wear supportive footwear for viewings and are advised to be conscious of potentially uneven and slippery surfaces.

VIEWINGS
Viewings are by appointment with the sole agents, Carter Jonas, on 01823 428590.

METHOD OF SALE
The site is offered for sale by private treaty. Offers in the region of £500,000 are invited.

TENURE & POSSESSION
The freehold of the property is offered for sale with vacant possession available upon completion.

LOCAL AUTHORITY
Sedgemoor District Council

DIRECTIONS
Heading towards Cannington from Bridgwater on the A39, turn left onto Blackmore Lane (adjoining Buildbase and Bridgwater Mowers). Follow Blackmore Lane for about ¾ of a mile and the entrance to Ashdown Farm will be found on the left-hand side (it is the next entrance on the left after the properties known as New Cottages).

Key property details
Carter Jonas reference
TAU200125

Suggested properties

Here are a few properties you might like, but within 2 extra miles of your current search

Guide price £575,000 0.86 acres (0.348 hectares)
Development Land
Price on Application
Development Land
Guide price £850,000 1.9 acres (0.753 hectares)
Development Land
Guide price £1,750,000 6.4 acres (2.6 hectares)
Development Land
Thinking of selling?

Find out what your property is worth