Balls Barn Lane, Hewish BS24

Balls Barn Lane, Hewish BS24

Freehold | 0.94 acres (0.38 hectares)

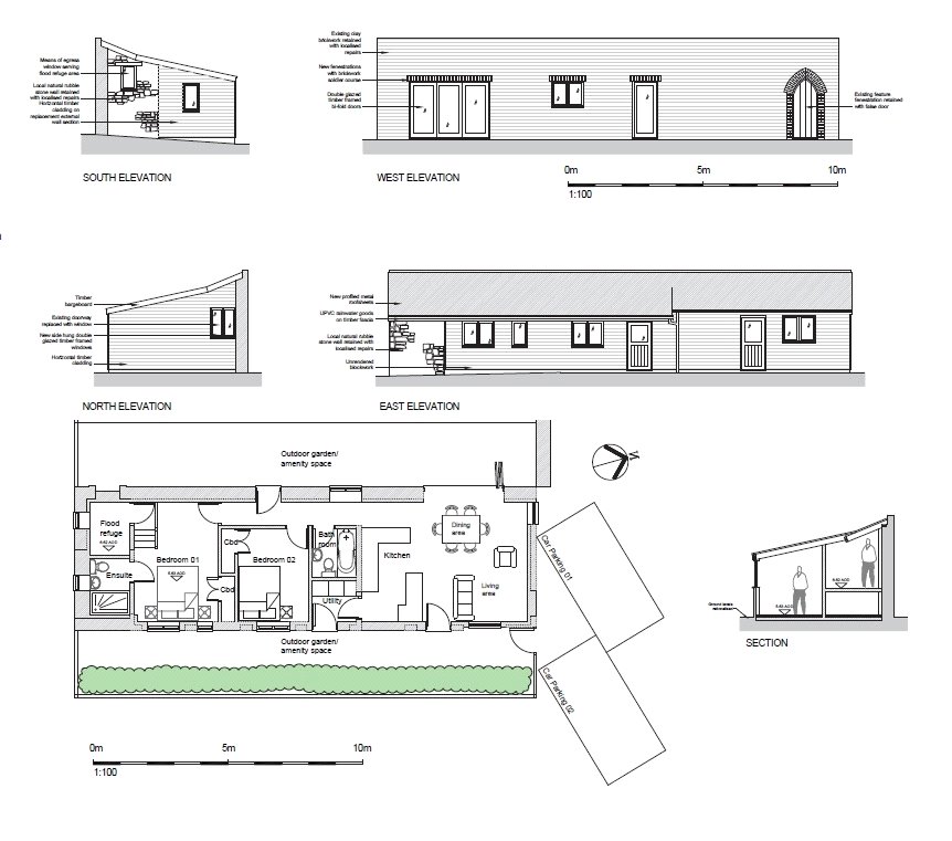
Two traditional barns with planning permission for conversion to two no. two bedroom dwellings together with a Dutch barn with lean-tos off and adjoining pasture paddocks. In all extending to 0.94 of an acre. For sale as a whole or in up to two separate lots.

Barns at Rolstone, Manor Farm, Balls Barn Lane, Hewish, Weston-super-mare, Somerset, BS24 6UR

Two barns with permission for conversion to two no. dwellings with about one acre.

The Barns at Rolstone Manor Farm comprise two traditional barns with planning permission for conversion to two no. two bedroom dwellings together with a Dutch barn with lean-tos off and adjoining pasture paddocks. In all extending to 0.94 of an acre. For sale as a whole or in up to two separate lots.


Location
The Barns at Rolstone Manor Farm are located between Weston-super-mare and Congresbury with easy access to the A370 and in turn the M5 motorway at Junction 21.


The Barns
Lot 1: The proposed Lot 1 comprises the westernmost barn of block, brick, and stone elevations under a tiled roof with a lean-to garage off to the north and enclosed garden to the west.

The western boundary comprises the close board fence. The semi-detached garage to the north is included and the northern boundary comprises the garage wall and close board fence. The proposed eastern boundary is the mid-point between barns 1 and 2 and the proposed southern boundary is 12’ to the south of the barn.


Lot 2: The proposed Lot 2 comprises the eastern barn of block, brick, and stone elevations under a tiled roof. In addition to the barn itself, there is a Dutch barn with lean-tos off included with Lot 2, together with two pasture paddocks to the east of the buildings.

The proposed western boundary comprises the mid-point between barns 1 and 2 and the proposed northern boundary comprises the close board fencing.


Method of sale
The property is offered for sale by private treaty as a whole or in two separate lots.
The guide price for the whole is £300,000.
The guide price for Lot 1 is £125,000 and the guide price for Lot 2 is £175,000.


Tenure & Possession
The freehold of the property is offered for sale with vacant possession available upon completion.


Planning
Planning permission was granted by North Somerset Council in December 2023 under application reference 23/P/0815/FUL for the conversion and change of use of two no. barns to create two no. residential dwellings with associated gardens and change of use of agricultural access track to mixed residential and agricultural use.


Services
Two separate mains water supplies have been connected to the south of the barns. Mains electricity appears to be available on the adjoining land. The purchaser(s) will need to install sewage treatment plant(s) to service the dwelling(s). Potential purchasers should make their own enquiries of the relevant service providers of the availability and capacity of mains services for the site.


Wayleaves Easements & Rights of Way
The site will be sold with a right of access over the track as hatched on the plan.


Health & Safety
Potential purchasers should take particular care when inspecting the property being mindful of uneven and potentially slippery surfaces as well as livestock and machinery which may be present/operating at the time of inspection.


Local Authority
North Somerset Council


Viewings
Potential purchasers may view the barns during reasonable daylight hours after informing the selling agents, Carter Jonas, on 01823 428590.


Directions
From Junction 21 of the M5 motorway follow the A371 to Bristol and Congresbury. Take the next right signed Rolstone onto West Rolstone Road. Follow the road for about ¼ of a mile, passing the entrance for Rolstone Manor. Turn left onto Balls Barn Lane. Follow this lane for a short distance and the new entrance drive to the barns will be found on the left.


What Three Words
///educated.oldest.yelled

Key property details
Tenure
Freehold
Size of land
0.94 acres (0.38 hectares)
Carter Jonas reference
TAU240039

Suggested properties

Here are a few properties you might like, but within 2 extra miles of your current search

Guide price £1,750,000 6.4 acres (2.6 hectares)
Development Land
Price on Application
Development Land
15.4 acres (6.2 hectares)
Commercial Development & Land
Thinking of selling?

Find out what your property is worth