Trood's Cottage, Clayhidon EX15

Trood's Cottage, Clayhidon EX15

Freehold

Guide price £175,000
Square 3 miles
Culmhead Radio Station 3.1 miles
Royal Oak 3.4 miles

A residential development opportunity comprising a former stone cottage with planning permission for restoration and extension set within a paddock in the Blackdown Hills National Landscape.

Trood’s Cottage, Clayhidon, Cullompton, Devon, EX15 3QF

A residential development opportunity comprising a former stone cottage with planning permission for restoration and extension set within a paddock in the Blackdown Hills National Landscape.

In all extending to 0.56 of an acre.

For sale by private treaty.

Location
The property is situated close to the Somerset/Devon border in a particularly attractive part of the Blackdown Hills.

Hemyock, which is about two miles to the west, offers a range of shops and services including a school, medical centre, church, post office and traditional pub.

Wellington, Honiton, and Taunton are also all within easy reach, all of which offer a wide range of shopping, social and scholastic facilities.

There is an excellent range of good schools nearby both in the independent and state sectors including Uffculme School, Wellington School, and Queens and Kings Colleges and Taunton School.

The M5 motorway can be joined at Wellington (J26) and Taunton offers a regular intercity service to London Paddington. The A30 can be joined at Honiton, which also offers a regular intercity service to London Waterloo.


The Property
Trood’s Cottage comprises a residential development opportunity comprising a former stone cottage with planning permission for restoration and extension set within a paddock in the Blackdown Hills National Landscape.

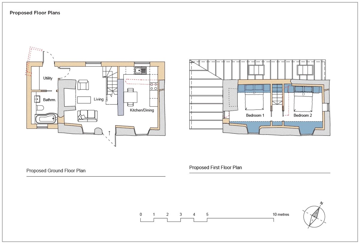
Planning permission has been granted to restore and add a ground floor extension. The restored property will provide accommodation comprising, on the ground floor, kitchen and dining room, sitting room, bathroom, utility room. On the first floor, there will be two double bedrooms. The plans set out that two parking spaces will be installed to the east of the property adjoining the road, together with a garden store to be erected to the south west of the cottage.


Method of Sale
The property is offered for sale by private treaty with a guide price of £175,000.


Tenure & Possession
The freehold of the property is offered for sale with vacant possession available upon completion.


Planning
Planning permission was granted by Mid Devon District Council in September 2023 for the restoration and erection of an extension to Trood’s Cottage and erection of garden shed under application reference 23/01058/FULL.


Services
The property is not connected to any services. The successful purchaser will therefore need to establish new service connections for the property.


Health & Safety
Due to the dilapidated condition of the property, potential purchasers are requested to take particular care when viewing. Potential purchasers should not enter the property due to the potentially unstable nature of the elevations and roof.


Local Authorities
Mid Devon Council
www.middevon.gov.uk


Viewings
Potential purchasers may view the property during reasonable daylight hours after informing the vendor’s agents, on 01823 428590, and with a set of these sales particulars in hand. The rear elevation of the property appears to be unstable and should only therefore be viewed from the roadside and not within the boundary of the property. Potential purchasers should not attempt to enter the building due to its apparent unstable condition. Please note the health and safety notice above.


Directions
From the village of Hemyock, follow signs from Hemyock Methodist Church to Clayhidon, Churchstanton and Churchinford. Take Culmbridge Road, passing Hemyock Post Office on the right-hand side. Continue up and out of the village passing Brookridge Timber on the right-hand side. After about 1½ to 2 miles on this road you will reach a signpost labelled ‘Shackles’. Turn right, signed to Bolham Water. Follow this road and turn left at the right-hand bend, signed ‘Middleton’. Follow this road down the hill into the valley bottom and up the other side. As the road begins to level out, continue straight on (passing the left turn) and the property will be found shortly thereafter on the right-hand side with reference to the boundary plan.


What Three Words
/// safety.editor.marzipan

The next steps...

Before making an offer on a property you will want to consider your financial situation, your income and outgoings.

Will you finance the purchase of your next property from the sale of an existing property which can put you in a chain, arrange a mortgage through your bank or buy the property outright.

To help you finance your next property purchase, we have a long established relationship with an independent mortgage broker who can discuss your situation with you.

Remember that having a 'mortgage decision in principle' can make you a more attractive buyer when you make an offer on a property. Contact our mortgage advisers for free, no obligation and impartial advice.

Some advantages of a broker are:

  • They do all the legwork for you, working on your behalf with the lender
  • They compare wholesale mortgage rates from a large number of banks and lenders all at once
  • Their wholesale interest rates can be lower than retail (bank branch) interest rates
  • They offer more loan options because they work with numerous banks and lenders
  • They can finance tricky deals because of their knowledge and various lending partners
  • They are typically easier to get in contact with, and are less bureaucratic.

However advantages of working with your bank are:

  • You may be able to build off an existing relationship (and gain discounts if you have a checking or savings account)
  • You may already know the banker who will handle your mortgage
  • Banks may be more accountable than a smaller shop
  • They may offer lower interest rates in some cases
  • Their ability to add mortgage to existing banking profile and make automatic payments from linked account.

When you see a property you are interested in on our website, call us 24/7 to arrange a viewing. Or if you prefer, get in touch via our website and we will call you back to find a time to view the property that suits you.

Once you’ve found a property you want to buy, it’s time to make an offer. A bit of negotiation is to be expected, however don't offer so little that you end up in a lengthy negotiation process, as you might lose the property altogether if someone else makes a higher bid.

If other offers have been made on a property we aren't legally able to tell you what they are, but we may indicate if they were close to the asking price.

If you have a property to sell, why not see how we can help you.

Or if you’re considering letting your property, we can take the stress out of managing your rental, and our award winning lettings team offer a service that can be tailored to your needs.

Combined with nearly 170 years of experience and one of the highest customer satisfaction scores in the industry, Carter Jonas is the perfect property partner.

Why not book a free, no obligation valuation of your property and find out how Carter Jonas can help you make your next move.

Key property details
Property attributes
Detached
Tenure
Freehold
Total sq ft
24,393.6 (2,266.2 Sq M) approx.
Carter Jonas reference
TAU250042

Suggested properties

Here are a few properties you might like, but within 2 extra miles of your current search

Guide price £225,000
development plot
Guide price £300,000
4 bedroom house
Guide price £275,000
development plot
Guide price £1,400,000
house
Guide price £600,000
4 bedroom house
Guide price £250,000
house
Asking price £265,000
3 bedroom bungalow
Thinking of selling?

Find out what your property is worth