Holiday letting business located on the Dorset coastline with views over the sea and Golden Cap. 2-bed owner’s cottage, with adjoining 1-bed annexe, which is currently used as a holiday let, but could occupied by a family member. 2-bed detached holiday lodge with sea views.
Holiday letting business located on the Dorset coastline with views over the sea and Golden Cap. The popular seaside village of Charmouth is 2 miles away and the nearest town of Lyme Regis is 5 miles further along the coastline.
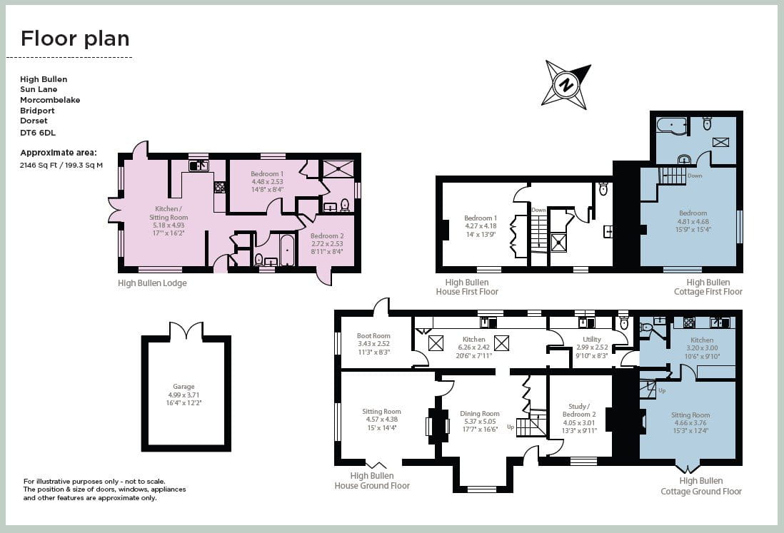
High Bullen provides a 2-bedroom owner’s cottage, with adjoining 1-bedroom cottage/annexe, which is currently used as a holiday let, but could occupied by a family member.
At the top of the site is a further 2-bedroom detached lodge, with panoramic coastal and countryside views.
In front of the main property are gardens and grounds with a vegetable patch.
The property extends to 0.55 acres in total.
For sale as a whole by private treaty.
Location High Bullen is located within Morcombelake and is easily accessible from the A35 Bridport to Axminster Road.
The property is set on the hillside overlooking the countryside and surrounding coastline with sea views and is located just off the centre of Morcombelake, with Felicity’s Farm Shop within walking distance.
The property is located within the Dorset National Landscape with the Dorset coastline, known as the Jurassic Coast, now having World Heritage status. Golden Cap is extremely popular within the area, starting at the National Trust car park at Langdon Hill being the highest point on the south coast.
The village of Charmouth is 2 miles away and offers local facilities, a sandy beach and is renowned for fossil hunting, due to its location along the Jurassic Coastline. Bridport is 4 miles away and provides a further shopping facilities.
The popular coastal town of Lyme Regis, famous for The Cobb harbour wall, is 5 miles away and has a range of restaurants, galleries, shops and a golf course, along with moorings for boating and sailing, as well as rowing via the Gig Rowing Club.
Further afield are the market towns of Axminster (8.5 miles) with a mainline railway station with London service and Honiton, 17.5 miles away.
The property has easy access onto the A35 to explore the Dorset and East Devon coastline, with the resorts of Sidmouth, Budleigh Salterton, West Bay, Lyme Regis and Weymouth being close by. The picturesque villages of Lulworth Cove, Beer and Branscombe are easily accessible.
Abbotsbury, with its priory, swannery and sub-tropical gardens, makes a popular day trip within the area.
Other local tourist attractions include Forde Abbey, the National Trust properties of Hardy’s Cottage, Corfe Castle, Cerne Abbas (famous for its chalk giant carved out of the hillside) and the pretty village of Colyton with its famous tramway to the coastal resort of Seaton. All weather attractions of Monkey World at Wareham and the tank museum at Bovington make ideal day trips.
There are golf courses at Lyme Regis, Bridport and Honiton, with sailing or boating along the coastline available at West Bay, Lyme Regis, Weymouth and Axmouth.
The Business High Bullen is an established and profitable business and is for sale due to retirement.
The West Dorset countryside and Jurassic Coastline make a popular tourist location.
The current owner’s let the Cottage and the Lodge via Lyme Bay Holidays, and run the business themselves, with limited staff due to the site being extremely manageable.
The letting income from the two holiday letting properties for the year ending April 2025 was £49,308 and year ending April 2024 was £47,270.
High Bullen House Period two storey cottage overlooking the gardens and surrounding countryside towards Golden Cap. The property has been refurbished and has planning permission to extend to provide an additional principal bedroom and bathroom with a balcony, which if built, would provide panoramic views over the surrounding countryside and to the sea.
The accommodation on the ground floor comprises a boot room with stable door which leads into the kitchen, with a further door leading into a utility room and cloakroom where there is access into the adjoining annexe/ cottage. From the kitchen there are steps which lead down into the dining room area, with a modern inset bioethanol fireplace, built-in book shelving, stairs to first floor, and door into bedroom 2/study, with window seat and painted brick former fireplace. The sitting room is accessed from the dining room and includes a wood burning stove and bifold doors leading out onto a patio area, which has panoramic countryside views. The patio can also be accessed via a doorway with covered porch area from the dining room.
At first floor, a landing gives access to a bedroom and bathroom. The bedroom has views over the countryside to the sea and built in wardrobes. Recently refurbished bathroom with a Vaillant hot water tank heated by the PV and solar panels.
The main property has its own private driveway and parking area, with a double garage with power and lighting, which has further development potential for accommodation subject to the necessary consents.
To the front of the property is a patio area with countryside views to Golden Cap which adjoins the sitting room and dining room and has an outside pizza oven.
The garden to the front of the house is laid mainly to lawn, with flower and shrub borders. The lower part of the front garden includes established fruit trees, fruit cages and a vegetable garden with greenhouse and polytunnel.
High Bullen Cottage (Sleeps 2) High Bullen Cottage has an interconnecting door at ground floor level linking to High Bullen House, or it can remain entirely self-contained. The cottage is ideal for use by a family member but is currently operated as a successful holiday let.
On the ground floor, the accommodation comprises a sitting room with wood burning stove, double French doors leading out onto a front patio area and stairs leading to first floor. From the sitting room is a kitchen/diner and cloakroom with interconnecting door into High Bullen House utility room.
At first floor, there is a bedroom with dual aspect providing sea views and an en-suite bathroom.
Outside, there is parking for one vehicle plus an enclosed patio area with seating which is enclosed by white picket fencing and is accessed from the cottage via French doors.
High Bullen Lodge (Sleeps 4) Located at the top of the site with panoramic countryside and sea views. The modern park home is single storey and has a wrap-around deck, providing outside seating, which is extremely popular with guests. In addition, there is parking for two vehicles next to the Lodge.
The property provides an open plan sitting/dining room and kitchen area with wood burning stove and double French doors leading out onto the front decking area. Inner hall, bedroom 1 with an en-suite shower room, bedroom 2 and a bathroom.
Method of Sale The property is offered by sale by private treaty inclusive of trade inventory to include furnishings, equipment, fixtures and fittings in relation to the business, excluding any personal items.
Tenure & Possession The freehold interest is offered for sale with vacant possession available on completion.
Planning Planning consent for the use of the existing annex for ancillary accommodation to High Bullen House or as a holiday let was approved in December 2023 by Dorset Council. Planning reference: P/FUL/2023/05725.
Planning consent for the erection of a ground floor extension with the formation of windows and a door, and the erection of a first floor balcony to master bedroom was approved in April 2021. Planning reference: WD/D/21/000012.
Planning consent for the first floor extension to the southern end of the building to form an annex (known as High Bullen Cottage) was approved in January 2014. Planning reference: 1/D/13/001582.
Planning consent for a new lodge to the rear garden was approved in January 2014 under planning reference 1/D/13/001456.
Services The properties are serviced by mains electricity, mains water and private drainage. The house and cottage both have boilers providing central heating, which are supplemented by the PV panels and solar array on the main property. The Lodge has a gas combi boiler powered with LPG bottles.
EPC Ratings High Bullen House has an EPC rating of D High Bullen Cottage has an EPC rating of C
Council Tax High Bullen has a Council Tax band of E
Rateable Value According to the Valuation Office, High Bullen Cottage has a rateable value of £2,150 and High Bullen Lodge has a rateable value of £3,700. Interested parties are advised to make their own enquiries.
Local Authority Dorset Council
Viewings Strictly by appointment with agents Carter Jonas, Taunton office.
What3Words /// visitors.worked.inventors
The next steps...
1
Establish funds
How will you fund the purchase?
Before making an offer on a property you will want to consider your financial situation, your income and outgoings.
Will you finance the purchase of your next property from the sale of an existing property which can put you in a chain, arrange a mortgage through your bank or buy the property outright.
To help you finance your next property purchase, we have a long established relationship with an independent mortgage broker who can discuss your situation with you.
They do all the legwork for you, working on your behalf with the lender
They compare wholesale mortgage rates from a large number of banks and lenders all at once
Their wholesale interest rates can be lower than retail (bank branch) interest rates
They offer more loan options because they work with numerous banks and lenders
They can finance tricky deals because of their knowledge and various lending partners
They are typically easier to get in contact with, and are less bureaucratic.
However advantages of working with your bank are:
You may be able to build off an existing relationship (and gain discounts if you have a checking or savings account)
You may already know the banker who will handle your mortgage
Banks may be more accountable than a smaller shop
They may offer lower interest rates in some cases
Their ability to add mortgage to existing banking profile and make automatic payments from linked account.
2
Making an offer
with Carter Jonas.
When you see a property you are interested in on our website, call us 24/7 to arrange a viewing. Or if you prefer, get in touch via our website and we will call you back to find a time to view the property that suits you.
Once you’ve found a property you want to buy, it’s time to make an offer. A bit of negotiation is to be expected, however don't offer so little that you end up in a lengthy negotiation process, as you might lose the property altogether if someone else makes a higher bid.
If other offers have been made on a property we aren't legally able to tell you what they are, but we may indicate if they were close to the asking price.
3
Need to sell a property
or thinking of letting?
If you have a property to sell, why not see how we can help you.
Or if you’re considering letting your property, we can take the stress out of managing your rental, and our award winning lettings team offer a service that can be tailored to your needs.
Combined with nearly 170 years of experience and one of the highest customer satisfaction scores in the industry, Carter Jonas is the perfect property partner.