Chantry Barn, Bridgwater TA5

Chantry Barn, Bridgwater TA5

Freehold

Guide price £350,000
Bridgwater Station 2.5 miles
Verriers 1.3 miles
Wembdon Rise 2 miles

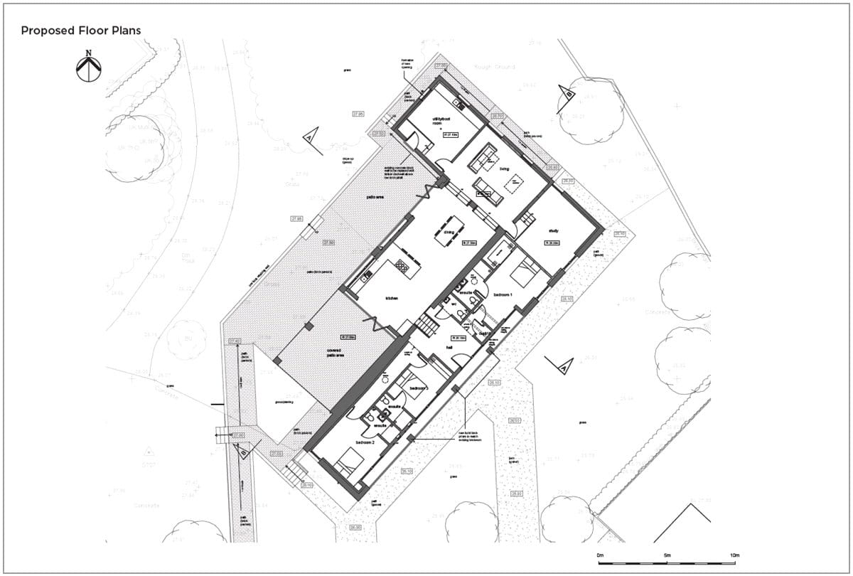
An impressive stone, brick and tile building with permission for conversion to a three/four-bedroom dwelling, together with a semi-detached stone, block, and tile building. In all extending to 0.64 of an acre.

Chantry Barn, Bridgwater, Somerset, TA5 2AD

A substantial barn for conversion to a dwelling.

Chantry Barn comprises an impressive stone, brick and tile building with permission for conversion to a three/four-bedroom dwelling, together with a semi-detached stone, block, and tile building for use as a workshop/store, but with potential to provide further ancillary accommodation if desired.

In all extending to 0.64 of an acre.

For sale by private treaty.


Location
Chantry Barn occupies a peaceful setting with frontage to the adjoining lane. The property is situated at the foot of the Quantock Hills, which is designated as a National Landscape and offers numerous walking and riding opportunities together with far reaching views.

The property benefits from excellent access with the M5 motorway at North Petherton (Junction 24) providing easy access to Taunton, Exeter, and Bristol and a train service from Taunton offers a fast train service to arrive at London Paddington within under two hours. The local towns of Bridgwater and North Petherton offer an excellent range of shopping facilities and services.


The Property
The barn comprises a substantial stone, brick, and tile building with permission for conversion to a three/four-bedroom detached dwelling. In addition, there is a semi-detached stone, block, and tile building for use as a workshop/store, but with potential to provide further ancillary accommodation if desired, subject to obtaining the necessary consent.

Outside, the barn is set within a good-sized plot with ample space for a large garden and parking area, with a semi-detached stone, block and tile workshop/garage building off the entrance drive which has been re-roofed and partially re-built recently.


Method of Sale
The property is offered for sale by private treaty with a guide price of £350,000.


Tenure & Possession
The freehold of the property is offered for sale with vacant possession available upon completion.


Planning
Planning permission and listed building consent was granted in 2022 for the change of use and conversion of the barn to a detached dwelling and garage/workshop together with the formation of a parking area on the site of an agricultural building (to be demolished). The planning application reference number is 37/22/00002. The vendors have commenced work by removing a building on the planning site, which has been confirmed by the Planning Officer. Planning permission was previously granted under application 37/18/00078 for the conversion of the barn into two no. dwellings and garaging. This provided for a larger area of accommodation from the barn.

The barn is grade II listed within the curtilage of the neighbouring property known as The Chantry, for which there are the usual rights to maintain the neighbouring buildings on the boundary of the property.


Health & Safety
Potential purchasers should take particular care when inspecting the site. The property currently comprises a redundant barn within a working farmstead with many potentially uneven and steep ground surfaces. Potential purchasers should be mindful of potentially sudden movements from livestock which may be present and machinery which may be operating at the time of inspection.


Services
The successful purchaser will need to establish new service connections for the property. Mains water and electricity appear to be available in the road adjoining the southern boundary. A package treatment plant will need to be installed by the purchaser. The vendor will grant the relevant easement for a discharge to the ditch within their retained land, subject to the purchaser obtaining the necessary regulatory consent associated with this.


Local Authorities
Somerset Council (Sedgemoor District)


Viewings
Viewings are by appointment with the vendor’s agent, Carter Jonas, on 01823 428590.


Directions
Heading from Junction 24 of the M5 motorway, follow signs towards North Petherton, taking the first exit off the roundabout onto the A38/Taunton Road into North Petherton. Continue on the A38 at the traffic lights at the turning to the market, and then take the right turn signed Goathurst, Clavelshay, Broomfield, and Fyne Court. Follow this road up the hill and out of North Petherton, until you reach the right turning at Dancing Hill. Turn right signed Woolmersdon and Durleigh. Follow this road for about one mile, continuing towards Bridgwater. Upon reaching the grass triangle with the right turn signed Bridgwater, turn right onto Rhode Lane. Follow this lane, passing Rhode Farm on the left-hand side, and take the second concrete entrance drive into Rhode Farm. The barn will be found on the right-hand side.


What Three Words
/// assets.select.song

The next steps...

Before making an offer on a property you will want to consider your financial situation, your income and outgoings.

Will you finance the purchase of your next property from the sale of an existing property which can put you in a chain, arrange a mortgage through your bank or buy the property outright.

To help you finance your next property purchase, we have a long established relationship with an independent mortgage broker who can discuss your situation with you.

Remember that having a 'mortgage decision in principle' can make you a more attractive buyer when you make an offer on a property. Contact our mortgage advisers for free, no obligation and impartial advice.

Some advantages of a broker are:

  • They do all the legwork for you, working on your behalf with the lender
  • They compare wholesale mortgage rates from a large number of banks and lenders all at once
  • Their wholesale interest rates can be lower than retail (bank branch) interest rates
  • They offer more loan options because they work with numerous banks and lenders
  • They can finance tricky deals because of their knowledge and various lending partners
  • They are typically easier to get in contact with, and are less bureaucratic.

However advantages of working with your bank are:

  • You may be able to build off an existing relationship (and gain discounts if you have a checking or savings account)
  • You may already know the banker who will handle your mortgage
  • Banks may be more accountable than a smaller shop
  • They may offer lower interest rates in some cases
  • Their ability to add mortgage to existing banking profile and make automatic payments from linked account.

When you see a property you are interested in on our website, call us 24/7 to arrange a viewing. Or if you prefer, get in touch via our website and we will call you back to find a time to view the property that suits you.

Once you’ve found a property you want to buy, it’s time to make an offer. A bit of negotiation is to be expected, however don't offer so little that you end up in a lengthy negotiation process, as you might lose the property altogether if someone else makes a higher bid.

If other offers have been made on a property we aren't legally able to tell you what they are, but we may indicate if they were close to the asking price.

If you have a property to sell, why not see how we can help you.

Or if you’re considering letting your property, we can take the stress out of managing your rental, and our award winning lettings team offer a service that can be tailored to your needs.

Combined with nearly 170 years of experience and one of the highest customer satisfaction scores in the industry, Carter Jonas is the perfect property partner.

Why not book a free, no obligation valuation of your property and find out how Carter Jonas can help you make your next move.

Key property details
Tenure
Freehold
Total sq ft
27,878.4 (2,590 Sq M) approx.
Carter Jonas reference
TAU250046

Suggested properties

Here are a few properties you might like, but within 2 extra miles of your current search

Guide price £600,000
4 bedroom house
Guide price £225,000
development plot
Guide price £300,000
4 bedroom house
Guide price £275,000
development plot
Guide price £175,000
cottage
Guide price £795,000
7 bedroom house
Offers in excess of £800,000
6 bedroom house
Guide price £250,000
house
Thinking of selling?

Find out what your property is worth